Description
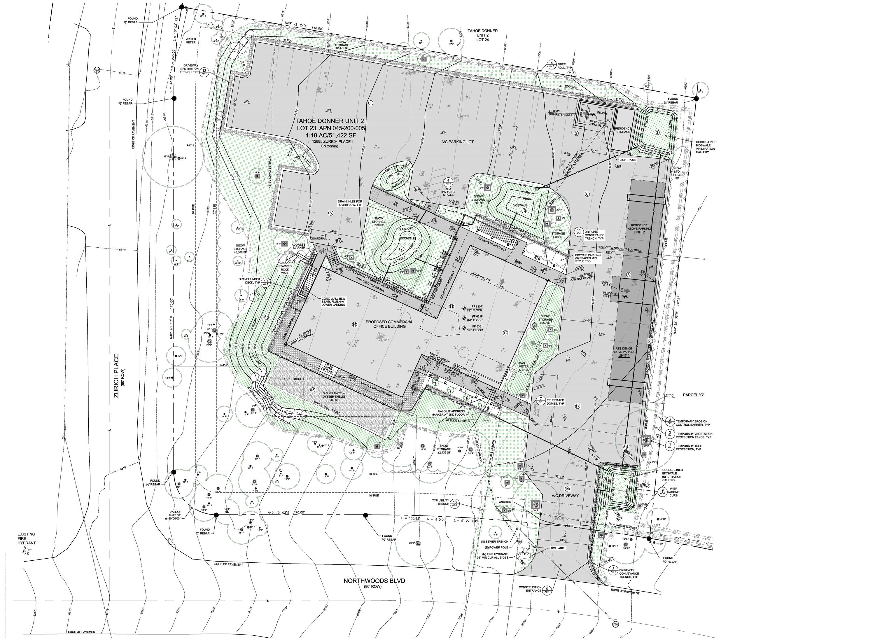
Tahoe Donner Commerce Center is planned to be one of the most prominent professional centers in Truckee. Possible development opportunities for this approved 10,000+ SF building include: medical office, VIP conferencing, retail/specialty, co-working office spaces, business campus, commercial office condo building and other allowed uses. The project site offers a high visibility corner location with ample parking, right in the center of Tahoe Donner. Also, there is very convenient access, with all season Interstate 80 and Truckee Airport just minutes away. This striking multi-use complex has been designed by local architectural firm MWA, featuring mountain-modern architecture, spectacular sky-lounge with rooftop deck, and forested ridge top views. Tahoe Donner Commerce Center is approved and comes with completed engineering. Designed with tenant flexibility in mind including options for individual exterior entrances or shared lobby reception. Third-floor design includes a sky-lounge area with a south-facing roof deck. Check out the virtual walk-through link and planning documents in associated docs.
Location
Listed By
Co-Listing Agent
Kristine P Mitchell
Sierra Sotheby's Int - Rock
Similar Listings
$599,000
MLS# 260004401
ACTIVE
Listing Office: Engel & Volkers Reno

$599,000
MLS# 260004398
ACTIVE
Listing Office: Engel & Volkers Reno

$699,000
MLS# 2600253
ACTIVE
Listing Office: CHASE INTERNATIONAL LAKE ALMANOR BROKERS

$725,000
MLS# 260003774
ACTIVE
Listing Office: Dickson Realty - Caughlin

$650,000
MLS# 260003680
ACTIVE
Listing Office: Chase International - ZC

$599,000
MLS# 260003508
ACTIVE
Listing Office: Ferrari-Lund Real Estate Reno

$599,000
MLS# 260003316
ACTIVE
Listing Office: Far West Real Estate LLC

$650,000
MLS# 260001684
ACTIVE
Listing Office: Sierra Sotheby's International

$599,000
MLS# 260001212
ACTIVE
Listing Office: RE/MAX Realty Affiliates

$599,000
MLS# 260001098
ACTIVE
Listing Office: RE/MAX Realty Affiliates

$660,000
MLS# 260000635
ACTIVE
Listing Office: RE/MAX Realty Affiliates

No similar listings found
Unfortunately, we don't have any similar listings at the moment. Please remove or change some of the selected filters.

The data relating to real estate for sale on this web site comes in part from the Broker Reciprocity Program of the Tahoe Sierra Multiple Listing Service. Real estate listings held by brokerage firms other than Sierra-Tahoe Realty, inc. are marked with the Broker Reciprocity logo and detailed information about them includes the name of the listing brokers.
The information being provided is for consumers' personal, non-commercial use and may not be used for any other purpose other than to identify prospective properties consumers may be interested in purchasing.
Information deemed reliable but not guaranteed
© Copyright Tahoe Sierra Multiple Listing Service. All rights reserved. Updated: 17th April, 2026 11:39 PM (UTC)
The information being provided is for consumers' personal, non-commercial use and may not be used for any other purpose other than to identify prospective properties consumers may be interested in purchasing.
Information deemed reliable but not guaranteed
© Copyright Tahoe Sierra Multiple Listing Service. All rights reserved. Updated: 17th April, 2026 11:39 PM (UTC)















